Autocad drawing file shows the Reinforcement Section of Beam-column Connection Details.Download the DWG AutoCAD file.
Description
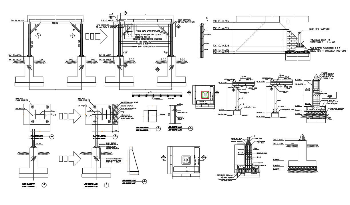
Autocad drawing file shows the Reinforcement Section of Beam-column Connection Details. The Reinforcement Details,Pedestal,Anchor Plate,Stiffener Plate,End Plate,Existing Plate are explained in this drawing. Download the DWG file.Diameter of bars,Cut- Section are explained in this drawing. Steel reinforcement section o A-Adetails are mentioned in this DWG File.Dimensions are clearly given in this diagram.Download the DWG AutoCAD file.Thanks for Downloading AutoCAD DWG and other CAD program files from our website.
File Type:
DWG
File Size:
226 KB
Category::
Structure
Sub Category::
Section Plan CAD Blocks & DWG Drawing Models
type:
Gold
Uploaded by:

