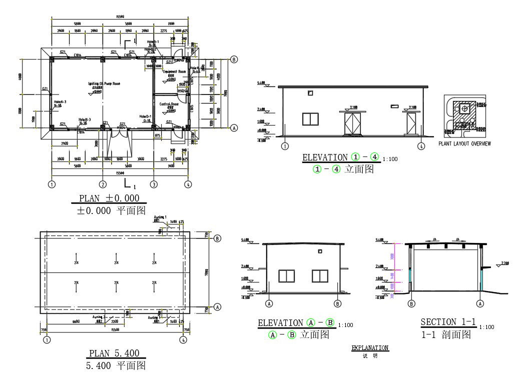
Blueprint AutoCAD Drawing of the Ignition oil pump house is given in this CAD DWG file. Download the AutoCAD 2D DWG file.
Description
Blueprint AutoCAD Drawing of the Ignition oil pump house is given in this CAD DWG file. The drawing shows the Plan layout, floor plan, section and elevation details Download the AutoCAD 2D DWG file. Thank you so much for downloading AutoCAD DWG 2D drawings from the cadbull website.
File Type:
DWG
File Size:
490 KB
Category::
Structure
Sub Category::
Section Plan CAD Blocks & DWG Drawing Models
type:
Gold

Uploaded by:
AS
SETHUPATHI

