This is the 2D DWG of Desiliting Settling Chamber & Recharge Pit.Download the file now.
Description
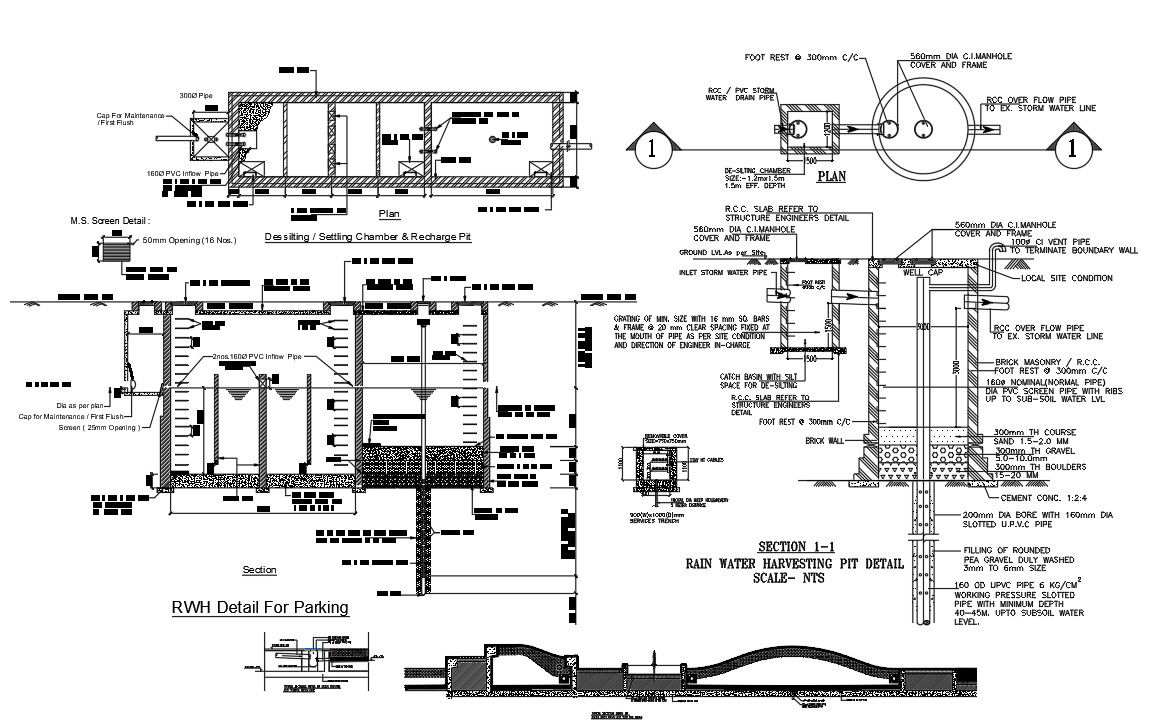
This is the 2D DWG of Desilting or Settling Chamber & Recharge Pit. The rainwater harvesting pit details are given in section. The typical sectional details of water body drain and subsoil drain given in this drawing. The details of the drain channel and subsoil drain pipe is given in AutoCAD drawing. The diameter of inflow and outflow are given clearly. Download the file now.
File Type:
Autocad
File Size:
200 KB
Category::
Structure
Sub Category::
Section Plan CAD Blocks & DWG Drawing Models
type:
Gold
Uploaded by:

