Community based water and sanitation of 2D autocad DWG drawing file is given. Download the DWG file.
Description
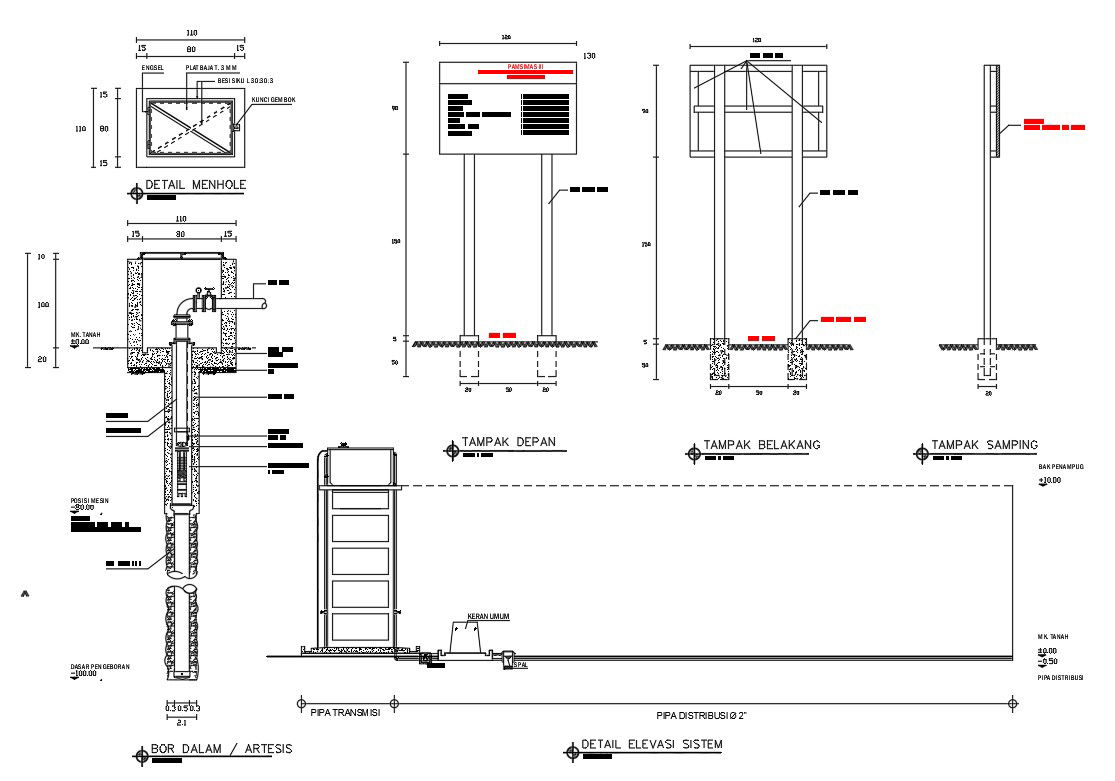
Community based water and sanitation of 2D autocad DWG drawing file is given. In this file side view, back view, front look, cut sections are clearly explained. The measurements are height of the pump and dia of the pump is given. The system elevation details are given and A bulk meter is provided that we fit to pipes to help us find leaks. They are usually fitted to pipes that supply large blocks of flats and they are only used to measure water flow and will not affect your bill. Thanks for downloading the 2D Autocad file and other CAD files from our website.
File Type:
DWG
File Size:
4.8 MB
Category::
Structure
Sub Category::
Section Plan CAD Blocks & DWG Drawing Models
type:
Gold
Uploaded by:

