DWG drawing file shows the details of second floor plan and section of office building. Download the Autocad DWG drawing file.
Description
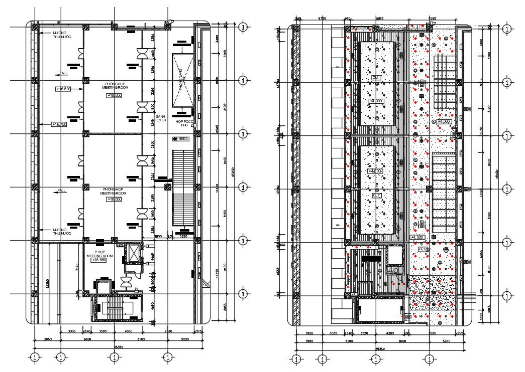
DWG drawing file shows the details of second floor plan and section of office building. In this file curtain wall, drain water tank, two meeting hall, straight foyer, media void and glass balustrade were provided and mentioned clearly. A curtain wall system is an outer covering of a building in which the outer walls are non-structural, utilised only to keep the weather out and the occupants in. Since the curtain wall is non-structural, it can be made of lightweight materials, thereby reducing construction costs. Thanks for downloading the file and other CAD program from our website.
File Type:
DWG
File Size:
331 KB
Category::
Structure
Sub Category::
Section Plan CAD Blocks & DWG Drawing Models
type:
Gold
Uploaded by:

