AutoCad drawing file having the villa floor plan layout.Download the AutoCAD 2D DWG file.
Description
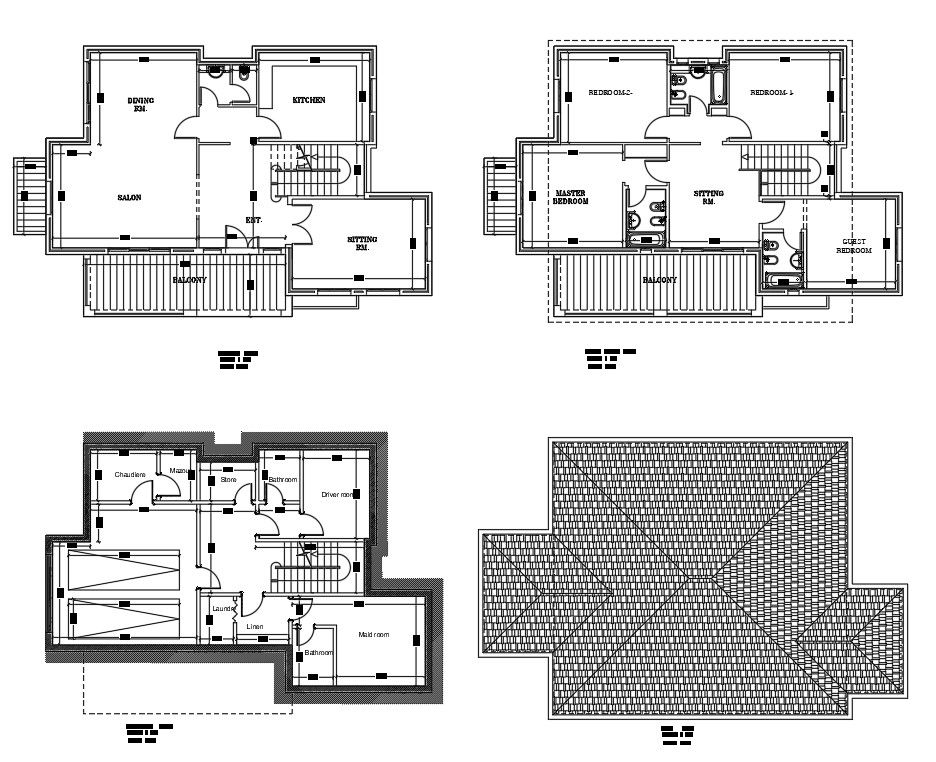
AutoCad drawing file having the villa floor plan layout. The building plan has basement ,ground floor and first floor plan. The dimension of each floor is clearly given in this drawing file. The rooms are kitchen, bedroom with attached toilet and common toilet, store room, dinning, guest room, sitting room.also the room plan is given and CAD block diagram for house is available. Download the AutoCAD 2D DWG file. Thank you so much for downloading DWG file from cadbull website.
Uploaded by:

