Office Meeting Room Plan And Elevation Drawing DWG File
Description
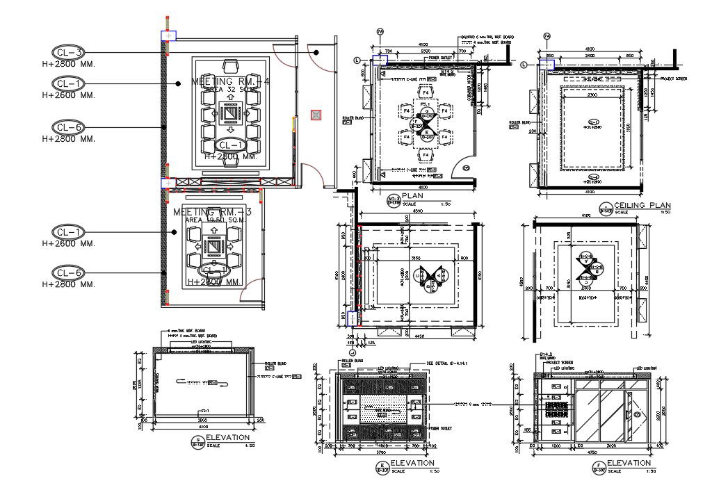
2d CAD drawing of office meeting room plan with furniture detail and wall elevation detail that shows art and involves the conceptualization of design ideas based with layout plan, ceiling plan and elevation design with furniture detail. download meeting room CAD drawing DWG file.
File Type:
DWG
File Size:
322 KB
Category::
Interior Design
Sub Category::
Corporate Office Interior
type:
Gold
Uploaded by:

