Shelter layout plan and elevation, shelter roof framing plan & details sections were given in this drawing file. Download the Autocad DWG drawing file.

 Shelter layout plan and elevation, shelter roof framing plan & details sections were given in this drawing file. Download the Autocad DWG drawing file.
Profile

Uploaded by:

Marvel

Description
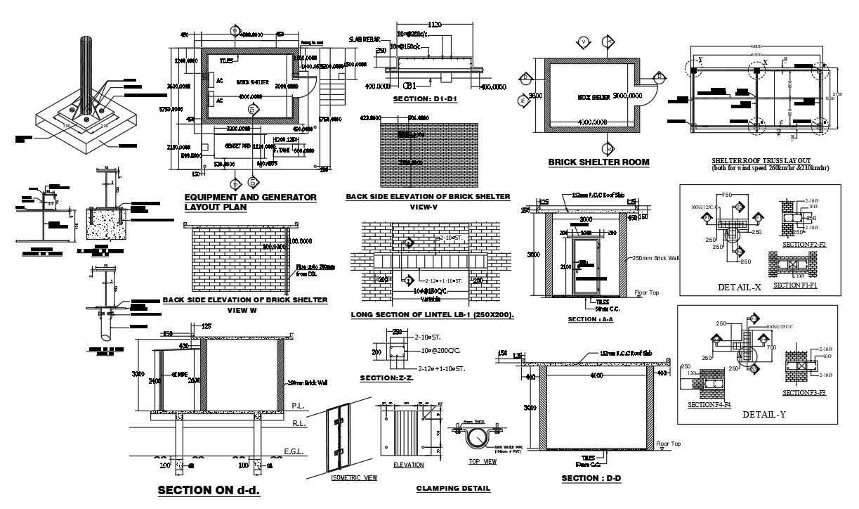
Shelter layout plan and elevation, shelter roof framing plan & details sections were given in this drawing file. Back side elevation of the shelter, longitudinal section of the lintel, equipment and generator layout plan, brick shelter room, clamping details and section were mentioned clearly. Shelter roof truss layout, section of channel I beam, section of I beam and section of I beam on GI pipe details were given clearly. Thank you for downloading the Autocad file and other CAD program from our cadbull website.
Profile

Uploaded by:

Marvel

find Latest

Related Files

WhatsApp Chat