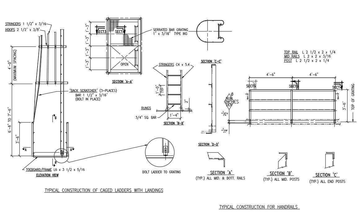
The typical construction details of the caged ladders with landings and handrails are given. Download the AutoCAD DWG file.
Description
The typical construction details of the caged ladders with landings and handrails are given. This DWG file having the section details and the elevation of the caged ladders with landings and handrails. Download the AutoCAD DWG file. Thank you so much for downloading AutoCAD files from our website.
File Type:
DWG
File Size:
89 KB
Category::
Structure
Sub Category::
Section Plan CAD Blocks & DWG Drawing Models
type:
Gold

Uploaded by:
AS
SETHUPATHI

