2000 Square Feet House Plan Drawing DWG File
Description
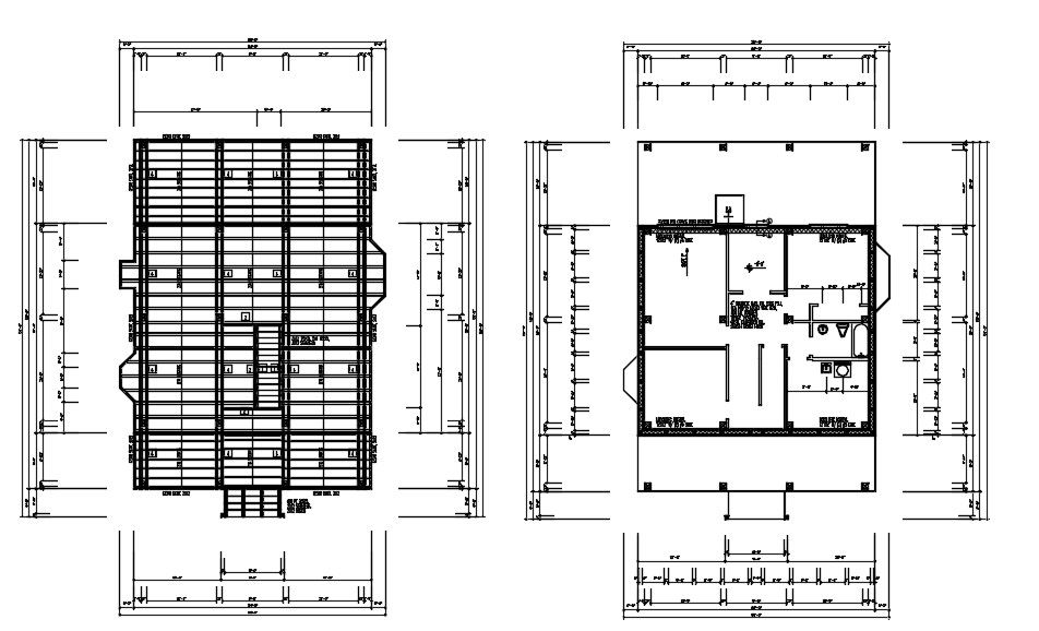
38'X54' residence house layout plan with wooden truss roof ceiling design with all dimension detail. also has column layout plan detail. download 2000 square feet house project drawing DWG file.Thank you for downloading the AutoCAD 2D DWG drawing file and other CAD program files from our website.
Uploaded by:

