Pipe line details are given for the 13th floor of hospital building in the Autocad DWG drawing file. Download the Autocad DWG drawing file.
Description
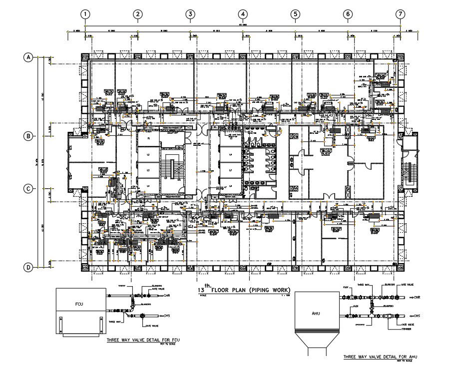
Pipe line details are given for the 13th floor of hospital building in the Autocad DWG drawing file. Air handling unit and fan coil units were provided in this floor. An air handling unit (AHU) is a component of an HVAC system that cools and distributes air into the space through a duct. A fan coil unit (FCU) is a standalone system that circulates the existing air in a small space, but it can also be a part of an HVAC system. Thank you for downloading the autocad 2D DWG drawing file and other CAD program files from our website.
File Type:
DWG
File Size:
505 KB
Category::
Dwg Cad Blocks
Sub Category::
Autocad Plumbing Fixture Blocks
type:
Gold
Uploaded by:

