Cooling tower plant details of the hospital building drawing file is given in the 2D Autocad model. Download the Autocad 2D DWG drawing file.
Description
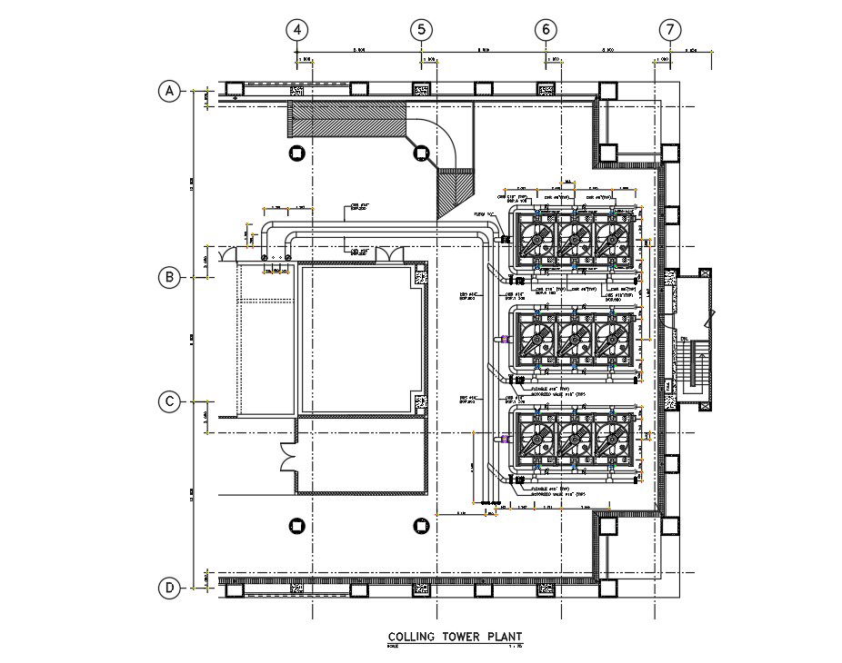
Cooling tower plant details of the hospital building drawing file is given in the 2D Autocad model. This drawing file explains the cooling tower area, butter fly valve and motorized valve. A Butterfly valve is a quarter-turn rotational motion valve, that is used to stop, regulate, and start flow. A butterfly valve has a disc which is mounted on a rotating shaft. When the butterfly valve is fully closed, the disk completely blocks the line. Thank you for downloading the autocad 2D DWG drawing file and other CAD program files from our website.
File Type:
DWG
File Size:
334 KB
Category::
Dwg Cad Blocks
Sub Category::
Autocad Plumbing Fixture Blocks
type:
Gold
Uploaded by:

