4500 Square Feet House Ground Floor And First Floor Plan DWG File
Description
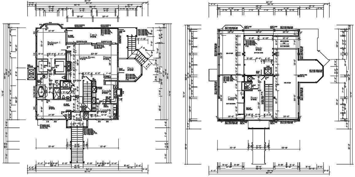
2d CAD drawing of house ground floor and first floor layout plan which consist bedrooms with attached toilet, family room, storage room, kitchen, carport, foyer area, dining room, den room, porch, and deck area ware mention all dimension detail. download 4500 square feet 3 BHK house layout plan drawing DWG file. Thank you for downloading the AutoCAD file and other CAD program from our website.
Uploaded by:

