Part section drawing details of the Hotel building is given in this AutoCAD DWG 2D Drawing File. Download the AutoCAD DWG file now.
Description
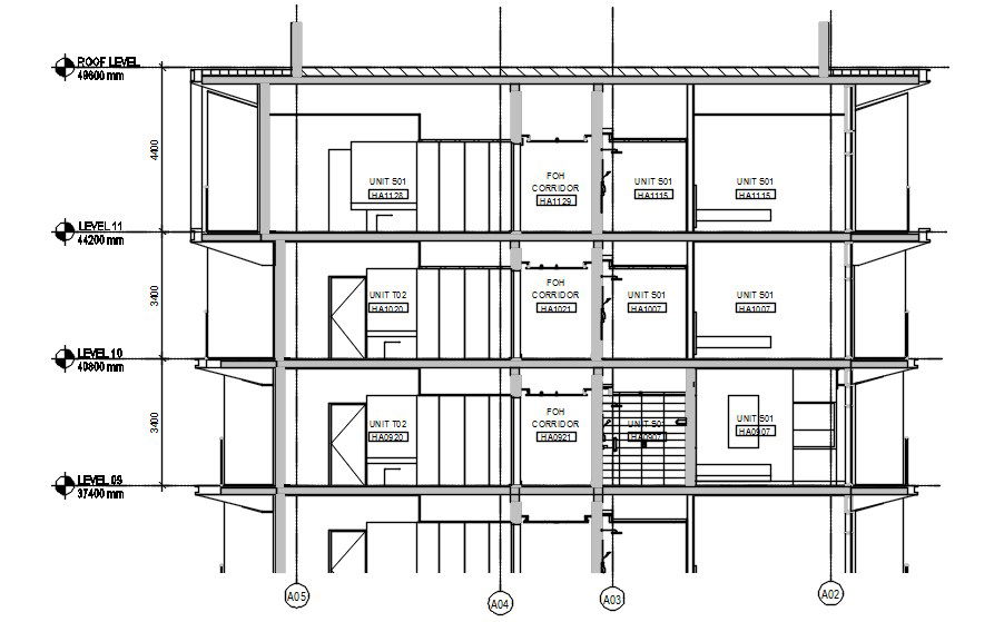
Part section drawing details of the Hotel building is given in this AutoCAD DWG 2D Drawing File. In this file, the compound wall, column frame structure, door,window and the unit details are mentioned neatly. The section detail and the dimension were also are given clearly in this drawing. Download the AutoCAD DWG file now. Thanks for downloading the file and another CAD program from the cadbull.com website.
File Type:
DWG
File Size:
152 KB
Category::
Structure
Sub Category::
Section Plan CAD Blocks & DWG Drawing Models
type:
Gold

Uploaded by:
AS
SETHUPATHI

