Architectural Detailed Drawing of Staircase section plan detail is given.Download the AutoCAD DWG file.
Description
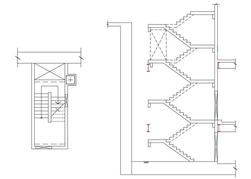
Architectural Detailed Drawing of Staircase section plan detail is given. The Sections details and the side elevation of the staircase are available in this drawing file. The measurement of the tread and riser is mentioned clearly in this drawing. Download the AutoCAD DWG file. Thank you so much for downloading DWG file from our website
File Type:
DWG
File Size:
160 KB
Category::
Structure
Sub Category::
Section Plan CAD Blocks & DWG Drawing Models
type:
Free

Uploaded by:
AS
SETHUPATHI

