Lift core details and basement reinforcement details are given in this AutoCAD DWG Drawing File.Download the AutoCAD DWG file now.
Description
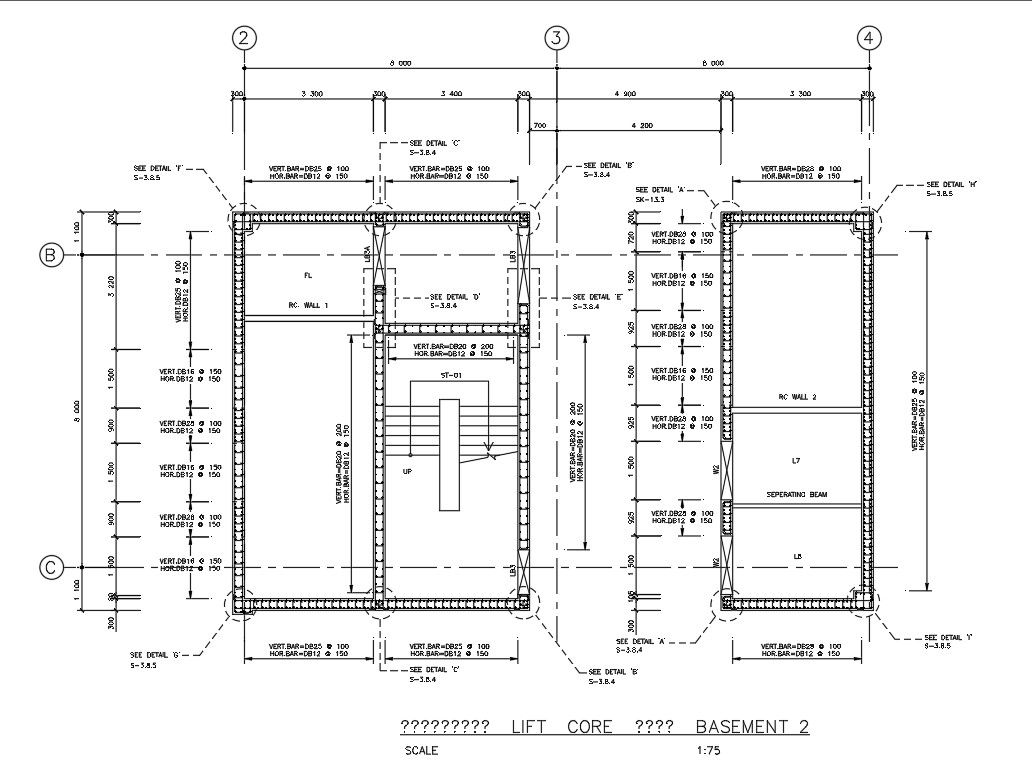
Lift core details and basement reinforcement details are given in this AutoCAD DWG Drawing File. In this file, Staircase, steel bar reinforcement, and wall sectional details were neatly shown. The section detail and the dimension were also are given clearly in this drawing. Download the AutoCAD DWG file now. Thanks for downloading the file and another CAD program from the cadbull.com website.
File Type:
DWG
File Size:
192 KB
Category::
Structure
Sub Category::
Section Plan CAD Blocks & DWG Drawing Models
type:
Gold

Uploaded by:
AS
SETHUPATHI

