Elevation detail of residence project..Download the AutoCAD DWG file now.
Description
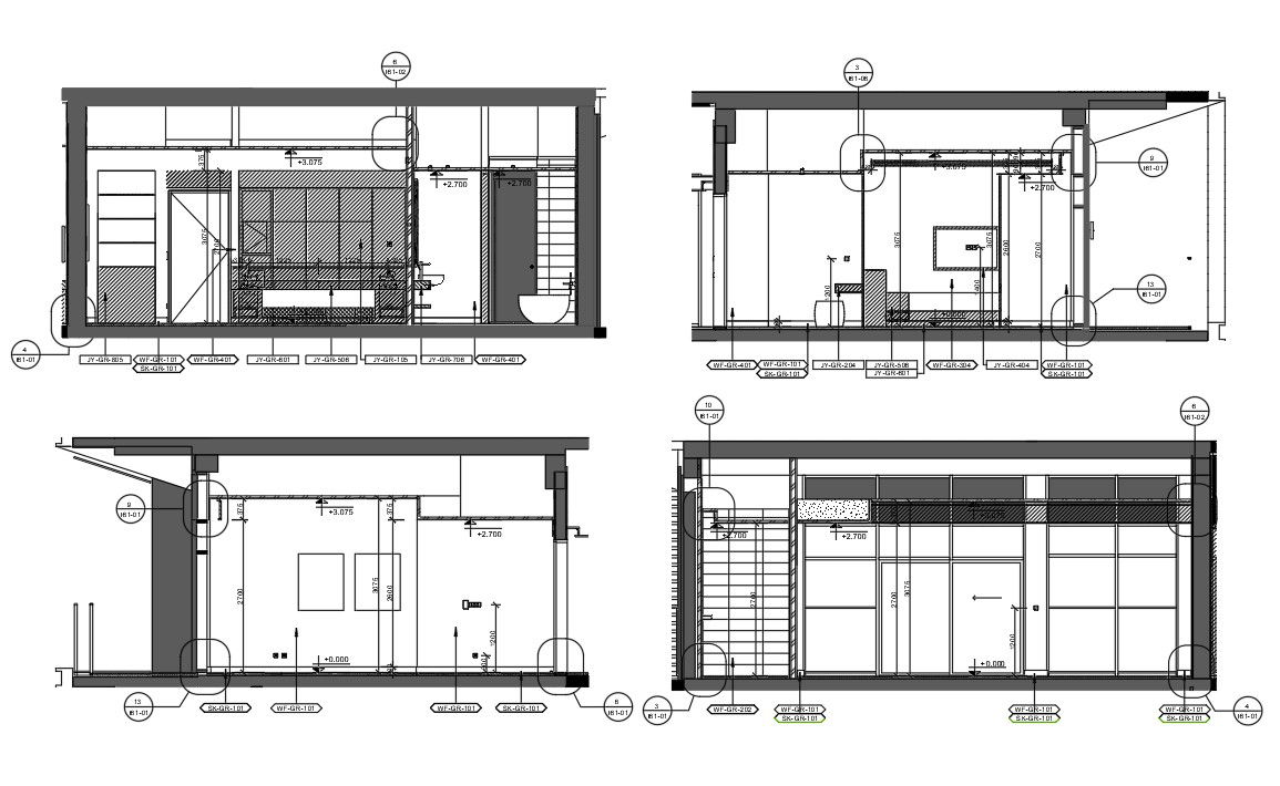
AutoCAD DWG 2D Drawing File presents details of the sectional elevation details of the building. In this file, the sliding glass door, balcony glass, and the window were neatly shown. The section detail and the dimension were also are given clearly in this drawing. Download the AutoCAD DWG file now. Thanks for downloading the file and another CAD program from the cadbull.com website.
Uploaded by:

