Sewage Sump Section Drawing Free Download DWG File
Description
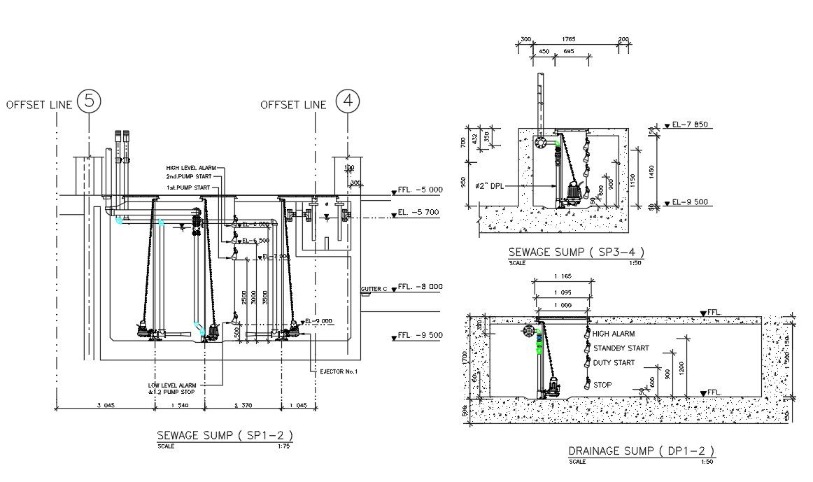
2d CAD drawing of sewage sump and drainage sump section view which consist special consideration has to be given to undeveloped or developing areas and to probable future growth with offset line, and alarm set up with automatic pumping drainage water. Download free sewage gutter box detail AutoCAD DWG file. Thank you so much for downloading DWG file from our website.
File Type:
DWG
File Size:
395 KB
Category::
Dwg Cad Blocks
Sub Category::
Autocad Plumbing Fixture Blocks
type:
Free
Uploaded by:

