Glass window section details AutoCAD 2D DWG drawing file is provided. Download the AutoCAD free 2D DWG file.
Description
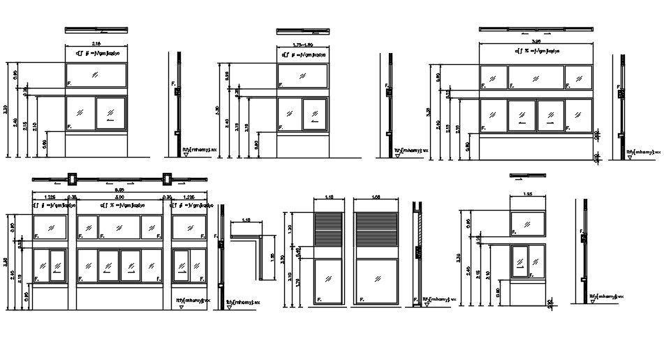
Glass window section details AutoCAD 2D DWG drawing file is provided. In this drawing file, a single side window, double door, Glassdoor, double window, Sectional details, and the dimensions are clearly given in this drawing file. Download the AutoCAD free 2D DWG file. Thank you so much for downloading DWG file from our website
File Type:
DWG
File Size:
111 KB
Category::
Structure
Sub Category::
Section Plan CAD Blocks & DWG Drawing Models
type:
Gold

Uploaded by:
AS
SETHUPATHI

