29X34 North Facing G1 Home Plan as per Vastu Shastra DWG PDF file
Description
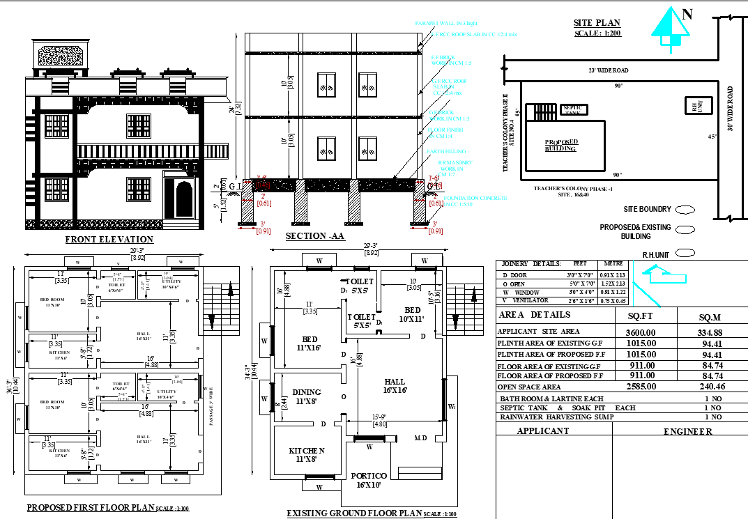
29'X34' North facing G+1 Home Plan as per vastu Shastra. The total carpet area of the ground and first floor is 1015 sqft. In the Ground Floor, There are 2 single bhk houses available. Both house room sizes are the same. the kitchen is in the Southeast direction. The Hall is available in the Northeast direction. The master bedroom is available in the southwest direction with the attached toilet is placed in the west direction.utiltity is in the northwest. On the first floor, the kitchen is in the Southeast direction. The Hall is available in the Northeast direction. The master bedroom is available in the southwest direction. The attached toilet is placed in the west direction.kid's the bedroom is in the northwest and the attached toilet is in the west. A staircase is available in the northwest Direction outside of the house. Road Available in the north direction. Typical sections and Elevation details of this house plan are given. Also, Door and window joinery details and area details are clearly mentioned in this drawing. Download Autocad Drawing file and PDF file.

Uploaded by:
AS
SETHUPATHI

