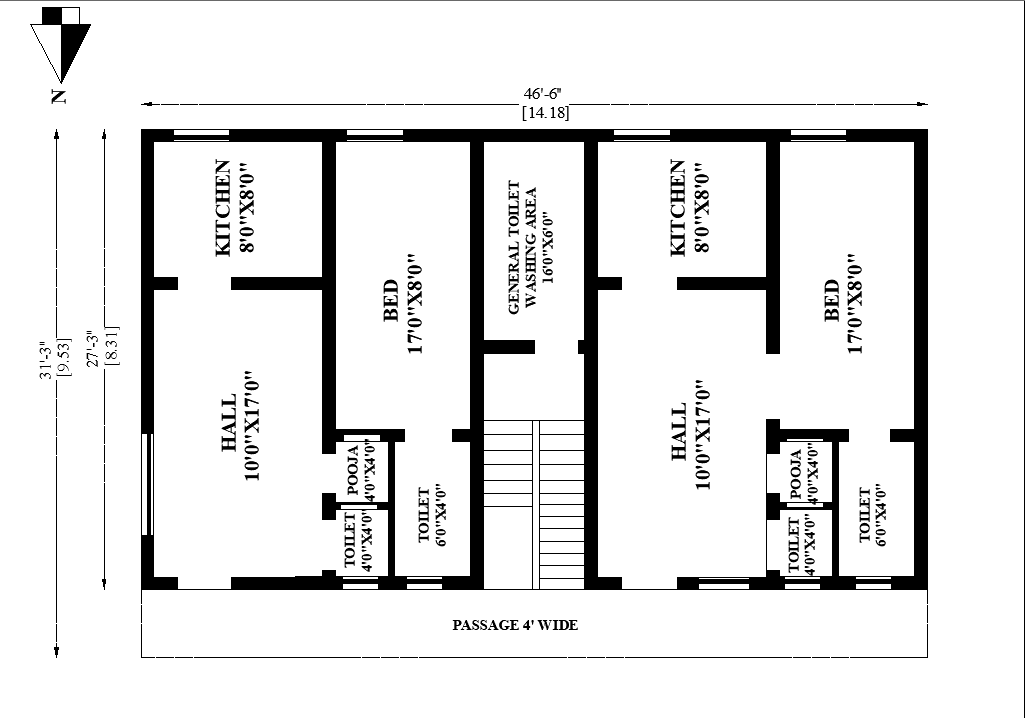
46'6"X31' blueprint plan of North facing 1bhk house plan as per Vastu Shastra.Download Autocad DWG and PDF file .
Description
46'6"X31' blueprint plan of North facing 1bhk house plan as per Vastu Shastra. The master bedroom is in the southwest direction with the attached toilet in the south and the children's bedroom is in the west direction kitchen cum dining is placed in the southeast, Hall and portico are available in the northeast direction. Puja room available in the south direction. The staircase is placed in the northwest direction outside of the house. Typical sections and Elevation details of this house plan are given. Also, Door and window joinery details and area details are clearly mentioned in this drawing. Download Autocad DWG and PDF file format of this house plan.

Uploaded by:
AS
SETHUPATHI

