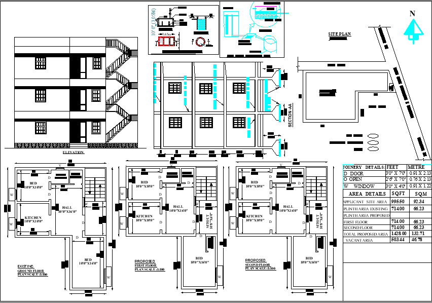
29'X39' G+2 blueprint plan of North facing 2bhk house plan as per Vastu Shastra is given in this drawing file.Download free Autocad DWG and PDF file format of this house plan.
Description
29'X39' G+2 blueprint plan of North facing 2bhk house plan as per Vastu Shastra is given in this drawing file. The Buildup area of this house plan is 714 sqft. The master bedroom is in the southwest direction with the attached toilet in the west and the children's bedroom is in the northeast direction. puja room is in the west. kitchen is placed in the southeast. Hall is available in the northeast direction. The staircase is placed in the northwest direction outside of the house. All the three floors having same room models, sizes of the rooms are all same as per the ground floor. Typical sections and Elevation details of this house plan are given. Also, Door and window joinery details and area details are clearly mentioned in this drawing. Download free Autocad DWG and PDF file format of this house plan.

Uploaded by:
AS
SETHUPATHI

