33'X40' 2BHK G+1 House plan layout is given in this AutoCAD DWG file.Download the AutoCAD Drawing file.
Description
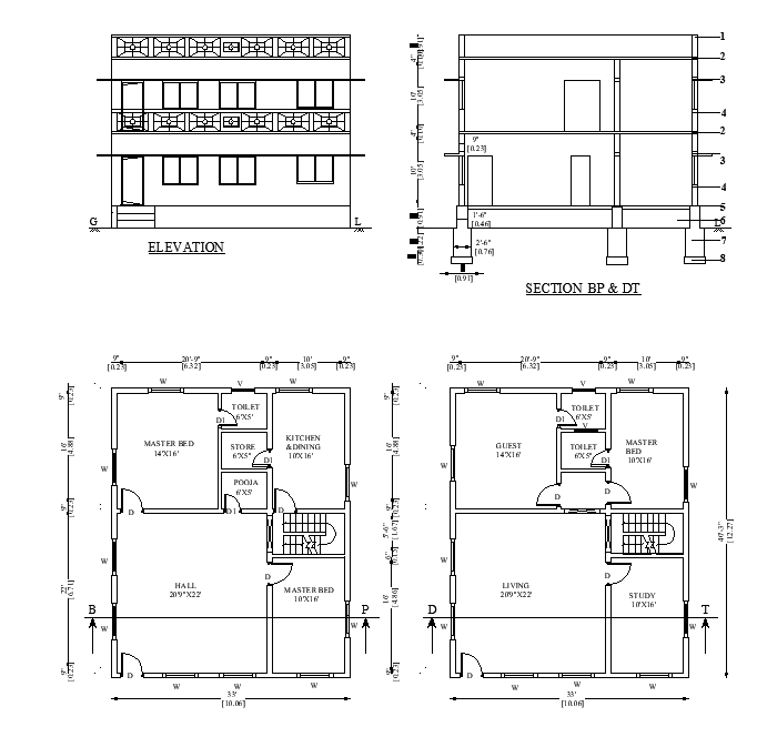
33'X40' 2BHK G+1 House plan layout is given in this AutoCAD DWG file. In this Plan the Ground floor having a master bedroom with an attached toilet, Kid's bedroom, storeroom, patio, Drawing room, Kitchen, Dining, TV Lounge, lobby, porch, and Lawn are available. On the first floor, Guest room, Master bedroom, study room and living room are available. The staircase is available inside the house. The Elevation and section of this house plan is given in this drawing. Download the AutoCAD Drawing file.

Uploaded by:
AS
SETHUPATHI

