63'X23' 2bhk East facing Trible House Plan As Per Vastu Shastra.Download Autocad Drawing file and PDF file.
Description
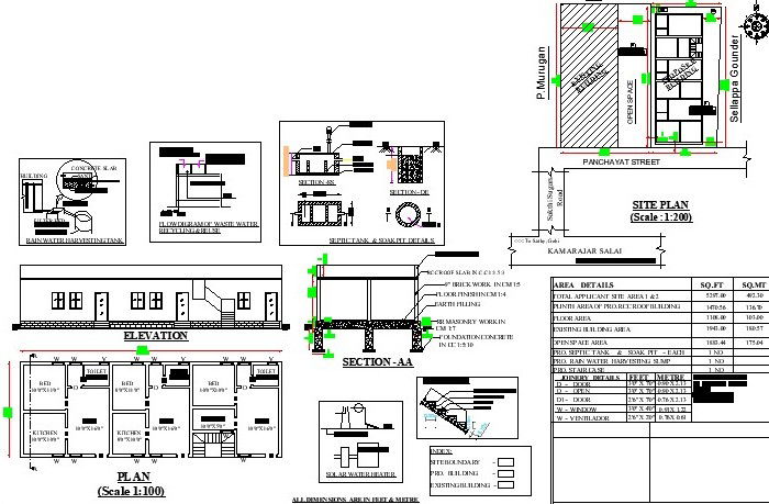
63'X23' 2bhk East facing Trible House Plan As Per Vastu Shastra. The total buildup area of this house is 1470 sqft. This Drawing file contains three flats. In the first flat, The kitchen is in the Southeast direction. The living area is available in the Northeast direction. The master bedroom is available in the southwest direction with the attached toilet is in the south. The kid's bedroom is in the northwest direction. In the second flat, The kitchen is in the Southeast direction. The living area is available in the Northeast direction. The master bedroom is available in the southwest direction with the attached toilet is in the south. The kid's bedroom is in the northwest direction. In the third flat, The kitchen is in the Southeast direction. The living area is available in the Northeast direction. The master bedroom is available in the southwest direction with the attached toilet is in the south. The kid's bedroom is in the northwest direction. A staircase is available in the southeast Direction outside of the house. Portico is available in the northeast direction of the house. Road Available in the east direction.Download Autocad Drawing file and PDF file.

Uploaded by:
AS
SETHUPATHI

