22'3"X27'3" East facing 1bhk house plan as per Vastu Shastra are given.Download Autocad DWG and PDF file format .
Description
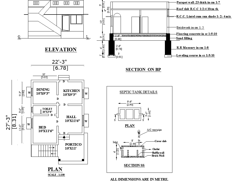
22'3"X27'3" East facing 1bhk house plan as per Vastu Shastra are given. In this house plan drawing the master bedroom is in the southeast direction with the attached toilet in the south. kitchen is placed in the northwest. and dining is placed near the kitchen is in the southwest. Hall and portico are available in the northeast direction. The staircase is placed in the southeast direction outside of the house. Typical sections and Elevation details of this house plan are given. Also, Door and window joinery details and area details are clearly mentioned in this drawing. Download Autocad DWG and PDF file format of this house plan.

Uploaded by:
AS
SETHUPATHI

