Commercial building elevation and typical section details AutoCAD DWG drawing file is given.Download the AutoCAD 2D DWG file.
Description
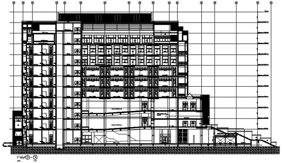
Commercial building elevation and typical section details AutoCAD DWG drawing file is given. Sectional details are clearly given in this drawing file. G+9 commercial elevation and section details are given in this DWG file. Download the AutoCAD 2D DWG file. Thank you so much for downloading DWG file from our website
File Type:
DWG
File Size:
4.7 MB
Category::
Structure
Sub Category::
Section Plan CAD Blocks & DWG Drawing Models
type:
Gold

Uploaded by:
AS
SETHUPATHI

