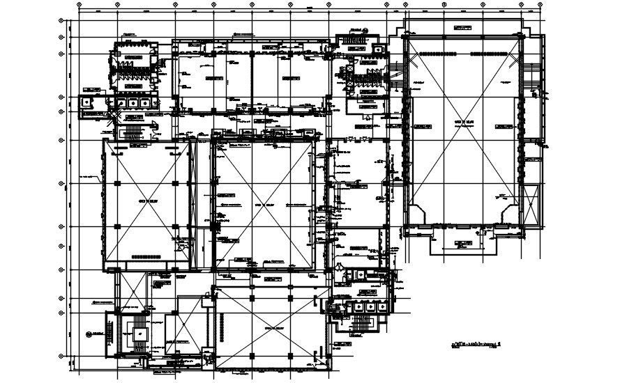
Floor plan and typical section details of the industrial building are given in this AutoCAD DWG drawing. Download the AutoCAD 2D DWG file.

Floor plan and typical section details of the industrial building are given in this AutoCAD DWG drawing.  Download the AutoCAD 2D DWG file.
Profile

Uploaded by:

AS

SETHUPATHI

Description
Floor plan and typical section details of the industrial building are given in this AutoCAD DWG drawing. Sectional details are clearly given in this drawing file. industrial building floor plan and section details are given in this DWG file. Download the AutoCAD 2D DWG file. Thank you so much for downloading DWG file from our website
Profile

Uploaded by:

AS

SETHUPATHI

find Latest

Related Files

WhatsApp Chat