The typical section details of the tank room are given in this AutoCAD DWG drawing.Download the free AutoCAD 2D DWG file.
Description
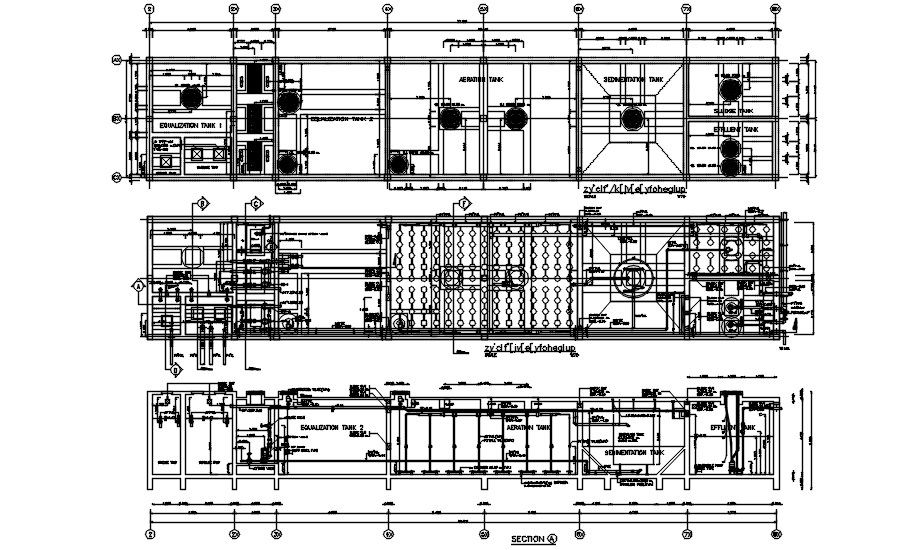
The typical section details of the tank room are given in this AutoCAD DWG drawing. Sectional details are clearly given in this drawing file. Equalization tank, Aeration tank, and sedmentation tank are available in this DWG file. Download the free AutoCAD 2D DWG file. Thank you so much for downloading the DWG file from the cadbull website.
File Type:
DWG
File Size:
900 KB
Category::
Structure
Sub Category::
Section Plan CAD Blocks & DWG Drawing Models
type:
Free

Uploaded by:
AS
SETHUPATHI

