G+1 5bhk House plan layout is given in this AutoCAD Drawing. Download the AutoCAD Drawing file.
Description
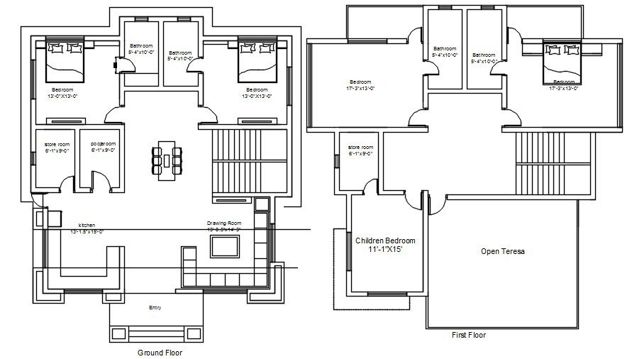
G+1 5bhk House plan layout is given in this AutoCAD Drawing. In this Plan the Ground floor having a master bedroom with an attached toilet, Kid's bedroom with an attached toilet, patio, Drawing room, Kitchen, Dining, TV Lounge, lobby, porch, Puja room, storeroom, and Lawn are available. On the first floor, master bedroom with an attached toilet,kids bedroom with an attached toilet,guest bedroom, storeroom and open terrace. The staircase is available inside the house. Download the AutoCAD Drawing file.

Uploaded by:
AS
SETHUPATHI

