28'3"X 44' Awesome East facing single bhk single storey house plan with 2 shops is available in this DWG CAD file. Download Autocad DWG and PDF file format of this house plan drawing.
Description
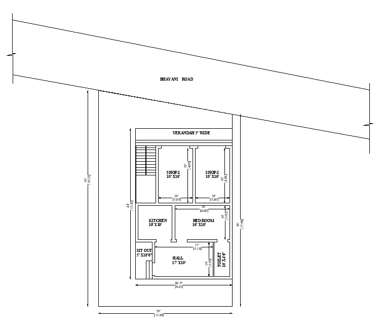
28'3"X 44' Awesome East facing single bhk single storey house plan with 2 shops is available in this DWG CAD file. The Buildup area of this house plan is 1232 sqft. This house plan attached to two shops. In this plan, the master bedroom is in the southwest direction with the attached toilet is in the northwest, the kitchen is placed in the southeast. The hall and sitout are in the northeast. Download Autocad DWG and PDF file format of this house plan drawing.

Uploaded by:
AS
SETHUPATHI

