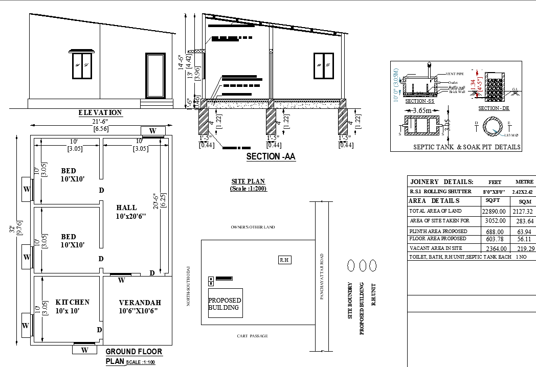
21'6"X32' blueprint plan of east-facing 2bhk house plan as per Vastu Shastra is given in this drawing file. Download Autocad DWG and PDF file format of this house plan.
Description
21'6"X32' blueprint plan of east-facing 2bhk house plan as per Vastu Shastra is given in this drawing file. The Buildup area of this house plan is 688 sqft. The master bedroom is in the southwest direction with the attached toilet in the west and the children's bedroom is in the north direction with the attached toilet in the northwest. puja room is in the south. kitchen is placed in the southeast. dining is placed in the south under the inner staircase. Hall and portico are available in the northeast direction. The staircase is placed in the south direction inside of the house. Typical sections and Elevation details of this house plan are given. Also, Door and window joinery details and area details are clearly mentioned in this drawing. Download Autocad DWG and PDF file format of this house plan.

Uploaded by:
AS
SETHUPATHI

