Elevation on-grid and purlin section details are given in this AutoCAD DWG drawing.Download the AutoCAD 2D DWG file.
Description
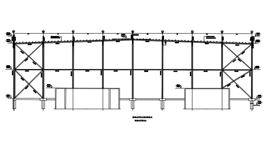
Elevation on-grid and purlin section details are given in this AutoCAD DWG drawing. Sectional details are clearly given in this drawing file. Grid reinforcement design, dimension, and section details are given in this DWG file. This drawing file is very useful for civil engineers. Download the AutoCAD 2D DWG file. Thank you so much for downloading DWG file from our website
File Type:
DWG
File Size:
710 KB
Category::
Structure
Sub Category::
Section Plan CAD Blocks & DWG Drawing Models
type:
Gold

Uploaded by:
AS
SETHUPATHI

