2 Storey House Building Sectional Elevation Drawing DWG File
Description
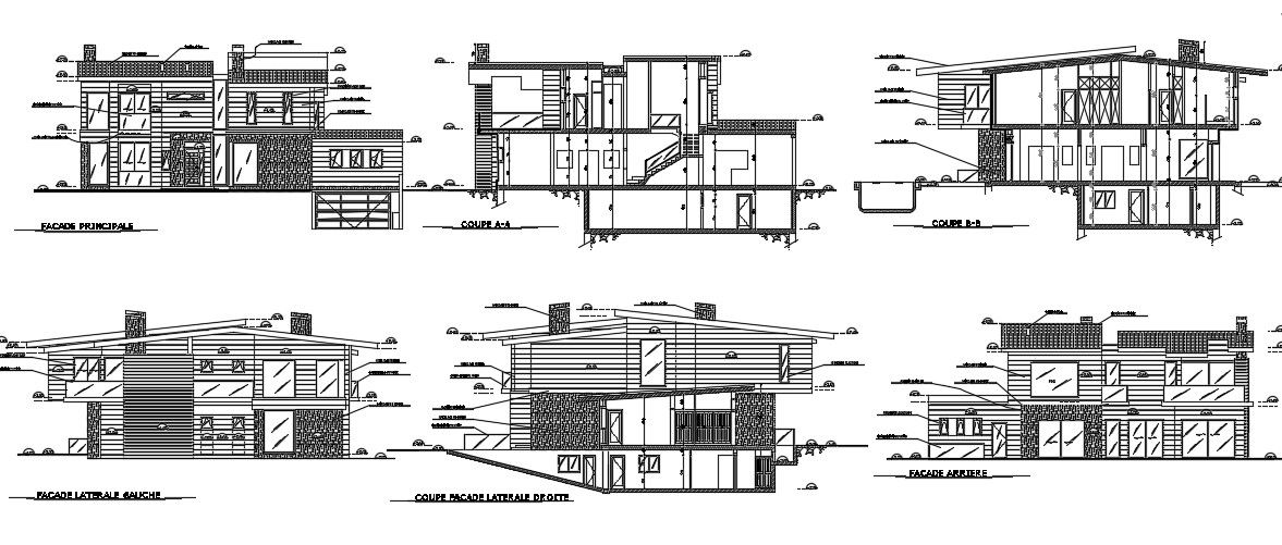
The residence house building section drawing and elevation design in all side view that shows 2 storey floor level building structure design. also has RCC slab, wall section, wooden roof sloping construction and door window marking detail. Download the AutoCAD file now. Thanks for downloading the file and another CAD program from the cadbull.com website.
Uploaded by:

