Machine room plan and shaft plan typical section details are given in this 2D CAD DWG drawing. Download the AutoCAD 2D DWG file.
Description
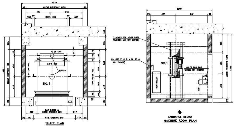
Machine room plan and shaft plan typical section details are given in this 2D CAD DWG drawing. Typical Sectional details are clearly given in this drawing file. Machine room plan, shaft plan, car rail, holes for governor ropes, hook position, lighting outlet, power receiving box no fuse, control panel, and section details are given in this DWG file. This 2d drawing is useful for civil engineers and architects. Download the AutoCAD 2D DWG file. Thank you so much for downloading the DWG file from our website.
File Type:
DWG
File Size:
229 KB
Category::
Structure
Sub Category::
Section Plan CAD Blocks & DWG Drawing Models
type:
Gold

Uploaded by:
AS
SETHUPATHI

