Fix hanger for bus duct is given in this 2D AutoCAD DWG drawing. Download the AutoCAD 2D DWG file.
Description
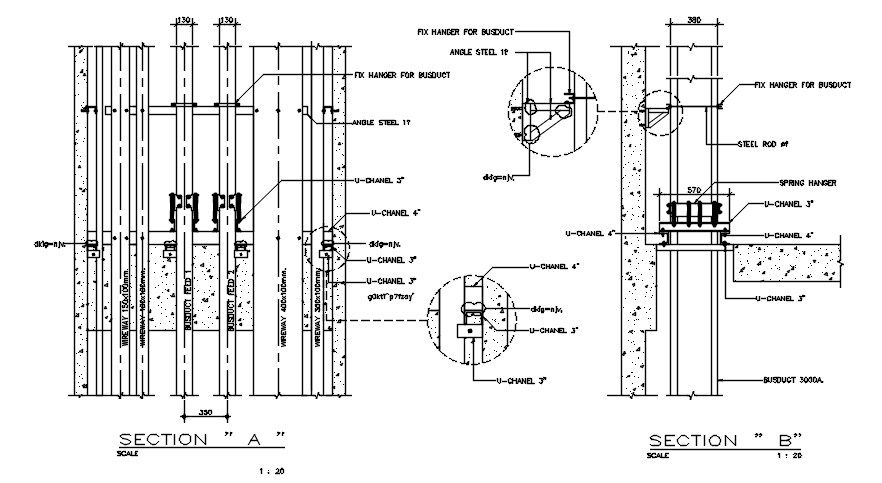
Fix hanger for bus duct is given in this 2D AutoCAD DWG drawing. Typical Sectional details are clearly given in this drawing file. Dimensions of the fixed hanger for the bus duct, angle sheet, u channel, steel rod, spring hanger, and wire way in shaft and section details are given in this DWG file. This 2d drawing is useful for civil engineers and architects. Download the AutoCAD 2D DWG file. Thank you so much for downloading the DWG file from our website.
File Type:
DWG
File Size:
281 KB
Category::
Structure
Sub Category::
Section Plan CAD Blocks & DWG Drawing Models
type:
Free

Uploaded by:
AS
SETHUPATHI

