Master Bedroom House Layout Plan AutoCAD Drawing DWG File
Description
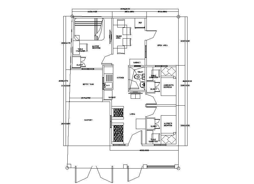
The Architecture CAD drawing of single storey residence house layout plan design that shows 1 master bedrooms, kitchen, dining area, open area, septic water tank, 2 single bedrooms, living area, and carpet area with measurement detail. Thank you for downloading the AutoCAD file and other CAD program from our website.
Uploaded by:

