Coffee Bar Layout Plan AutoCAD DWG for Interior Design Projects
Description
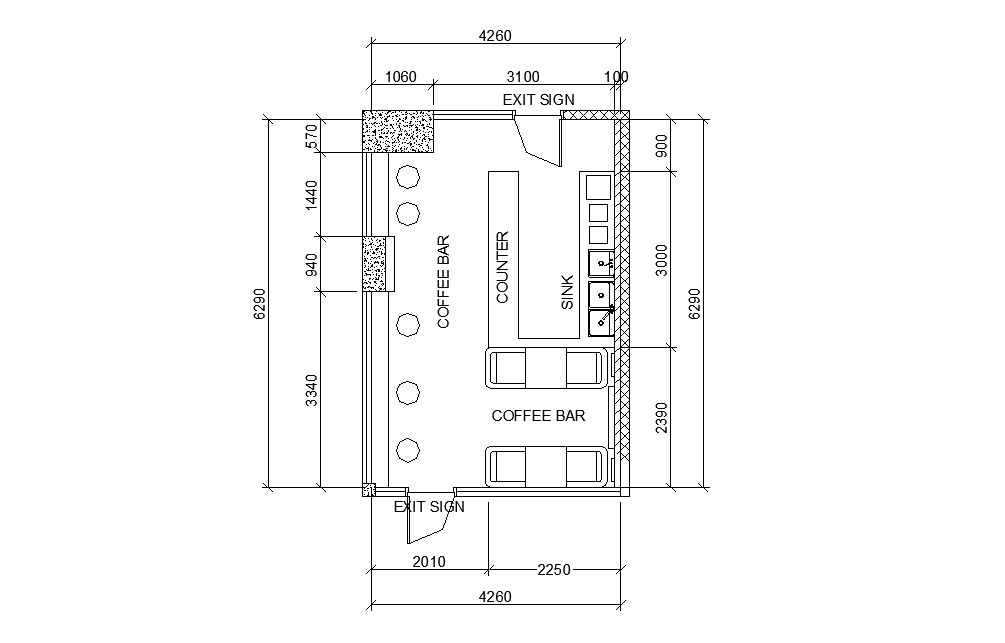
This Coffee Bar layout plan is a DWG format AutoCAD drawing tailored for interior designers, architects, and café planners. It includes the bar counter, seating zones, barista work area, service circulation, and detailed spatial dimensions. The drawing enables proper alignment of furniture, equipment, service zones, and circulation paths, helping optimize both customer experience and operational efficiency. This CAD file can be integrated into larger interior layouts to visualize how a coffee bar fits into cafés, restaurants, lounges, or retail food spaces.
Uploaded by:

