Sanitary Ware With Plumbing Installation Drawing DWG File
Description
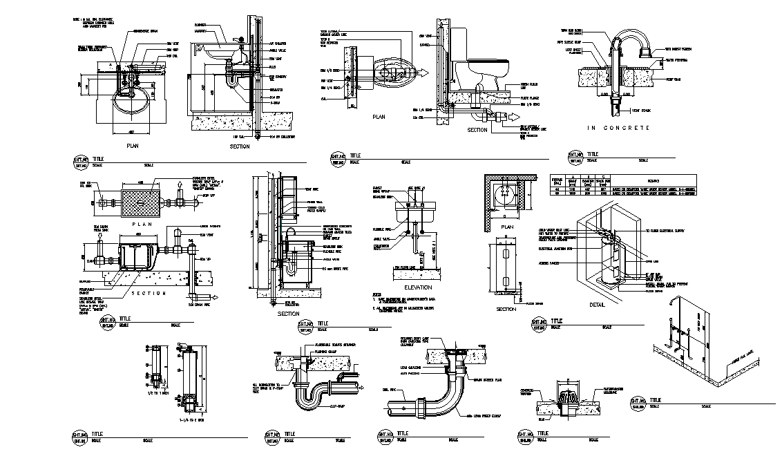
The Sanitary ware installation with plumbing pipe line sectional elevation drawing that shows wash basin, toilet tub, water heater and tap design with piping fixing detail. also has wash basin with closet design and flexible pipe with valve detail. Thank you for downloading the AutoCAD file and other CAD program from our website.
File Type:
DWG
File Size:
740 KB
Category::
Dwg Cad Blocks
Sub Category::
Autocad Plumbing Fixture Blocks
type:
Gold
Uploaded by:

