Sewer And Water Line Isometric Elevation Drawing DWG File
Description
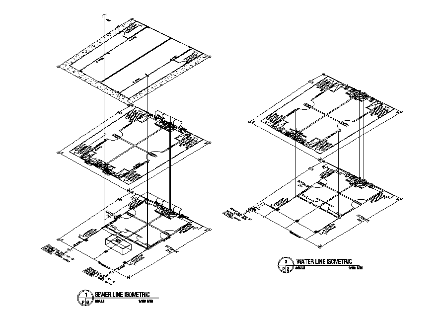
the residence house building sewer and water line isometric elevation design which consist connected pipe line to kitchen and toilet after it goes to a public manhole through the chamber box. also has the plumbing system of building provides all the piping and fixture detail. Thank you for downloading the AutoCAD file and other CAD program from our website.
File Type:
DWG
File Size:
2.8 MB
Category::
Dwg Cad Blocks
Sub Category::
Autocad Plumbing Fixture Blocks
type:
Gold
Uploaded by:

