13x16m amazing house plan details are given in this Autocad file. Download the 2D Autocad DWG drawing file.
Description
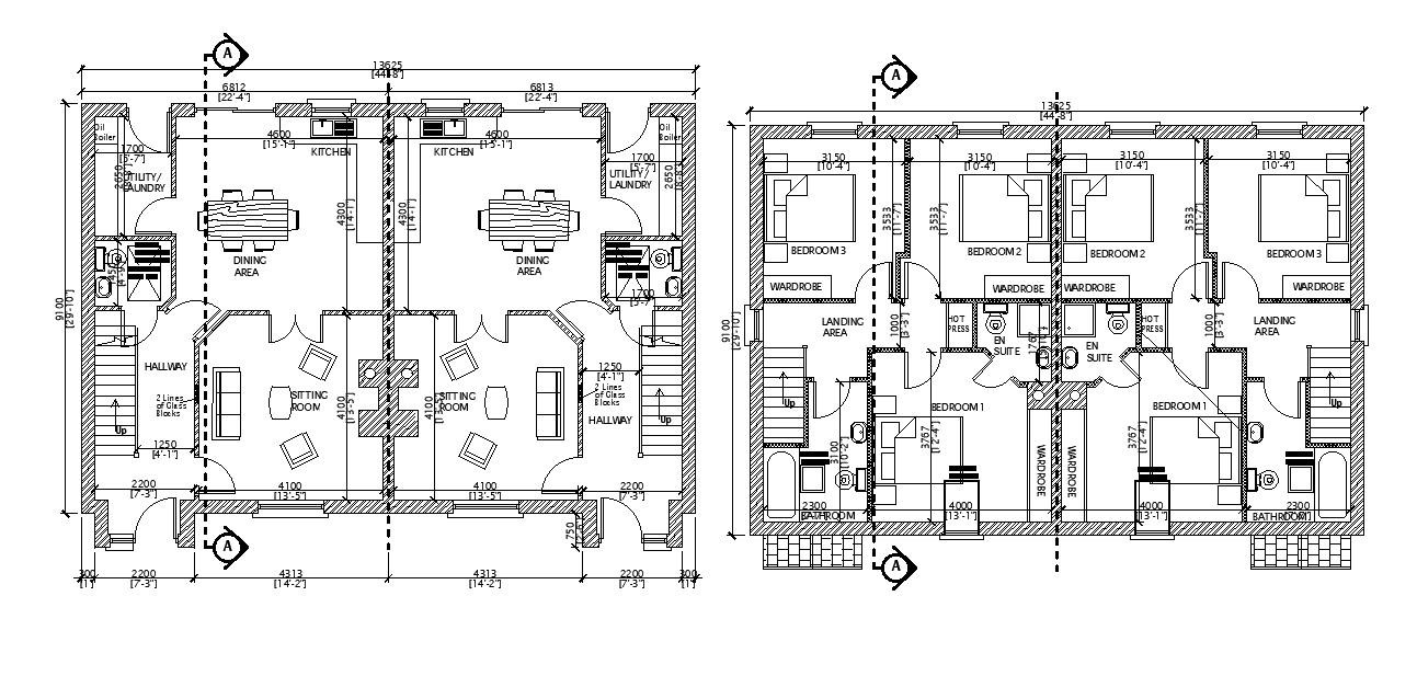
13x16m amazing house plan details are given in this Autocad file. This plan consists of laundry, utility room, dining area, kitchen, sitting room, hallway,6 bedrooms and toilets. This is very useful to the people who searching to construct with more than 3BHK house. Download the 2D AutoCAD DWG drawing file. Thank you for downloading the 2D AutoCAD DWG drawing file and other CAD program files from our website.
Uploaded by:

