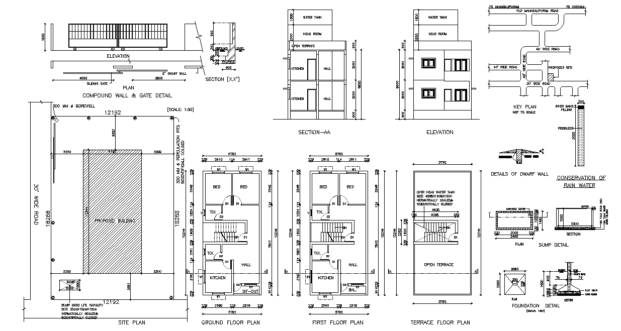
6x12m Site plan and floor plan are given in this 2D Autoad DWG drawing file. Download the 2D Autocad DWG drawing file.
Description
6x12m Site plan and floor plan are given in this 2D Autoad DWG drawing file. This is the residential house plan. Ground floor, first floor, terrace floor plan and compound wall & gate details are given clearly in this model. This plan consists of living hall, dining, kitchen, master bedroom, children’s bedroom with attached toilet. For more details download the 2D Autocad DWG drawing file. Thank you for downloading the 2D AutoCAD DWG drawing file and other CAD program files from our website.
Uploaded by:

