Proposed ground floor plan and first floor plan details are given in this 2D Autocad DWG drawing file. Download the 2D Autocad DWG drawing file.
Description
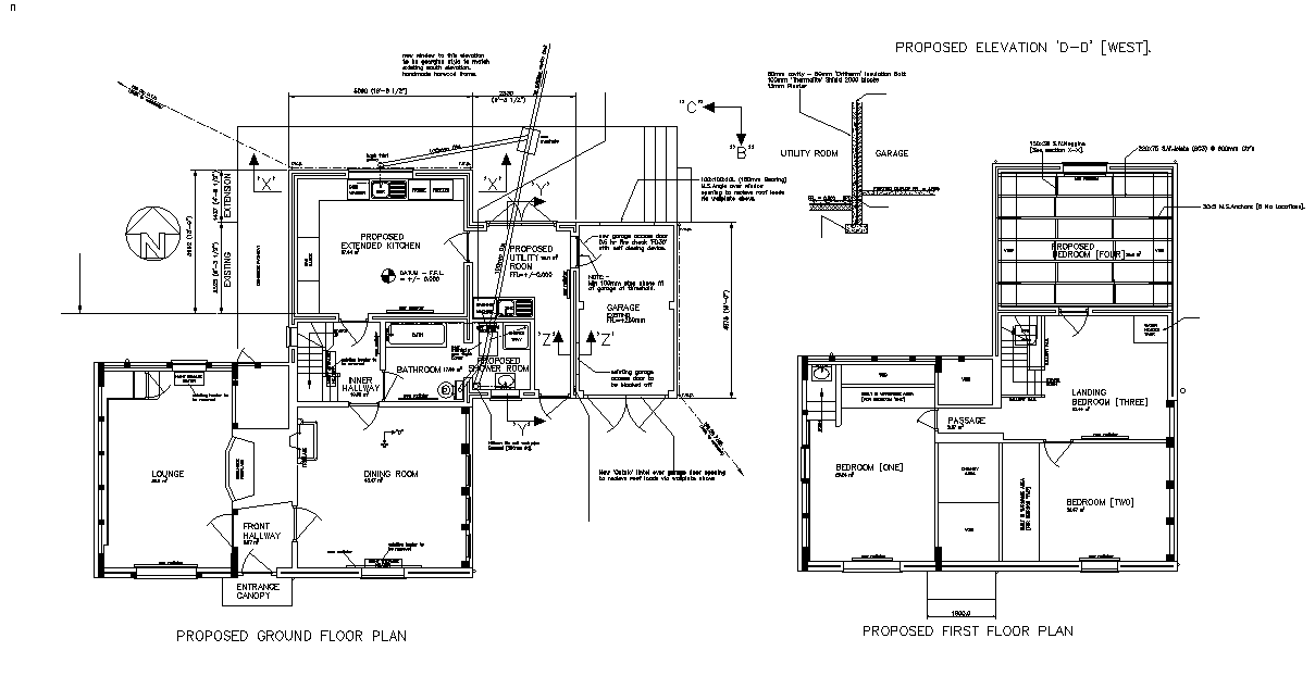
Proposed ground floor plan and first floor plan details are given in this 2D Autocad DWG drawing file. This plan consists of extended kitchen, dining, utility room, Staircase, bedrooms, doors, windows and garage are mentioned in this drawing model. Download the 2D Autocad DWG drawing file. Thank you for downloading the 2D AutoCAD DWG drawing file and other CAD program files from our website.
Uploaded by:

