Joint House 4 BHK Layout Plan With Furniture CAD Drawing DWG File
Description
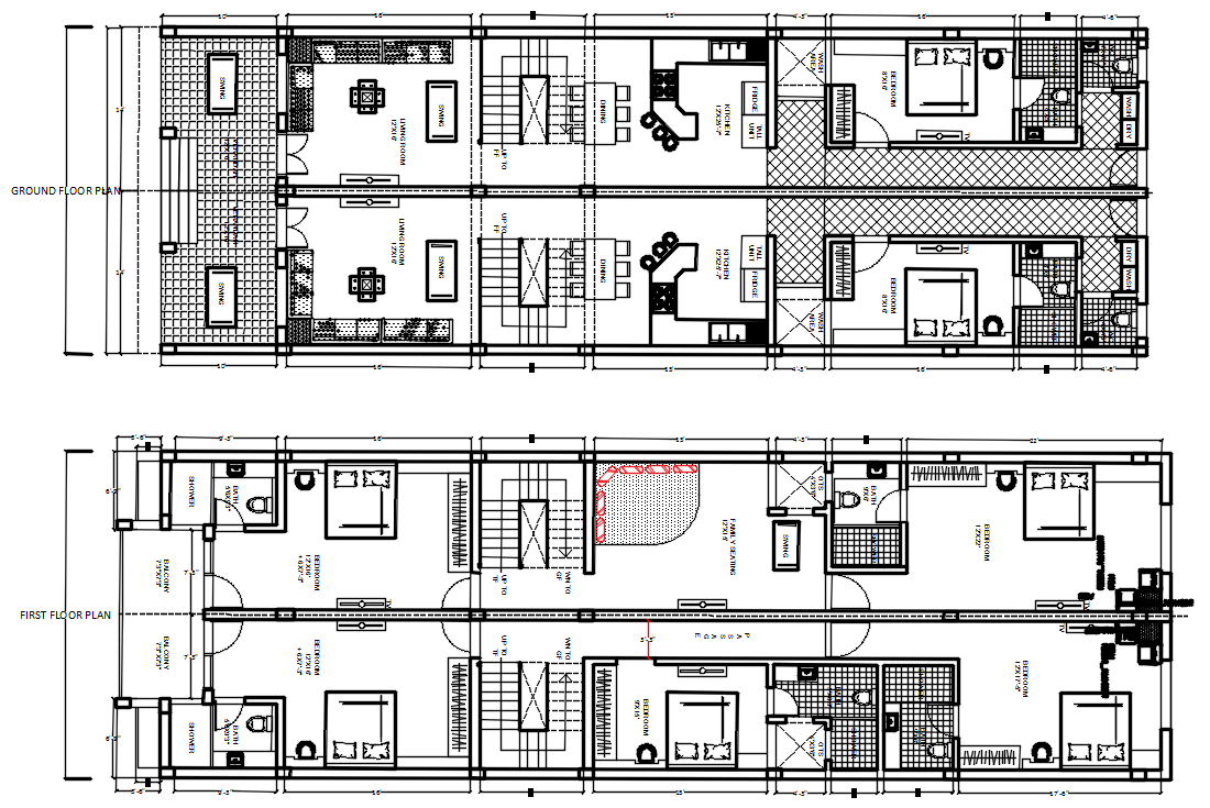
Autocad house plan drawing download of joint house shows space planning in plot size 85'X28'. here ground floor and first floor plan has been designed as spacious 4 bedrooms with and attached toilet, modular kitchen, living room, inside staircase, and balcony. the drawing contains architectural and interior furniture design with all dimension detail. Thank you for downloading the AutoCAD file and other CAD program files from our website.
Uploaded by:

