50'x22' House Floor Layout Plan in AutoCAD DWG File
Description
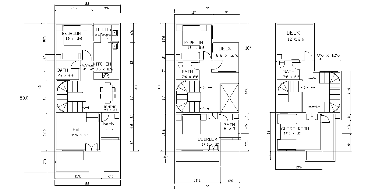
The house plan drawing shows space planning in plot size 50'X22' feet ground floor, first floor and second floor layout plan with furniture design which consist 4 bedrooms, kitchen, hall, dining area, deck area, guest room with all dimension detail. Thank you for downloading the AutoCAD file and other CAD program files from our website.
Uploaded by:

