80 Square Meter Architecture House Plan AutoCAD Drawing DWG File
Description
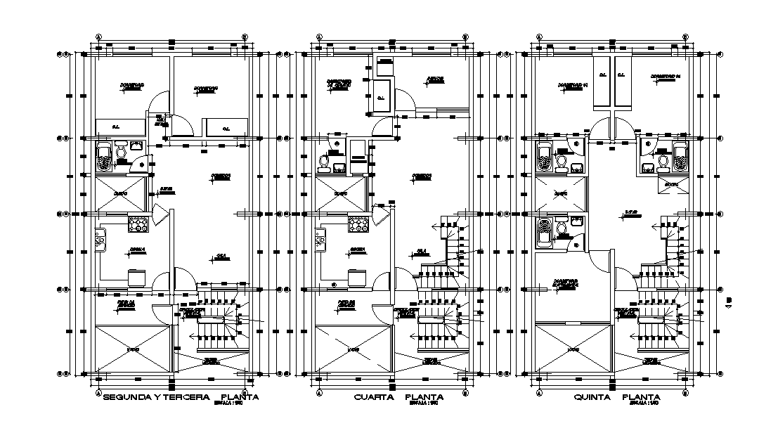
AutoCAD house plan CAD drawing shows space planning in 80 square meter plot size. Here Ground floor has been designed as spacious 2 bhk house with more of formal and open space. the first and second floor plan has 4 bedroom, study room, living area, drawing room and kitchen. Thank you for downloading the AutoCAD file and other CAD program from our website.
Uploaded by:

