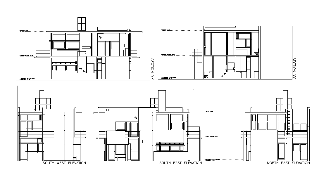
South west and south east elevation of the house building is given in this 2D Autocad DWG drawing file.Download the 2D Autocad DWG drawig file.
Description
South west and south east elevation of the house building is given in this 2D Autocad DWG drawing file. North West and section details are given in this model. Doors, windows, and staircases are mentioned in this drawing model. For more details download the Autocad DWG drawing file. Thank you for downloading the 2D AutoCAD DWG drawing file and other CAD program files from our website.
Uploaded by:

