8x15m house plan details are given in this Autocad drawing model. Download the 2D Autocad DWG drawing file.
Description
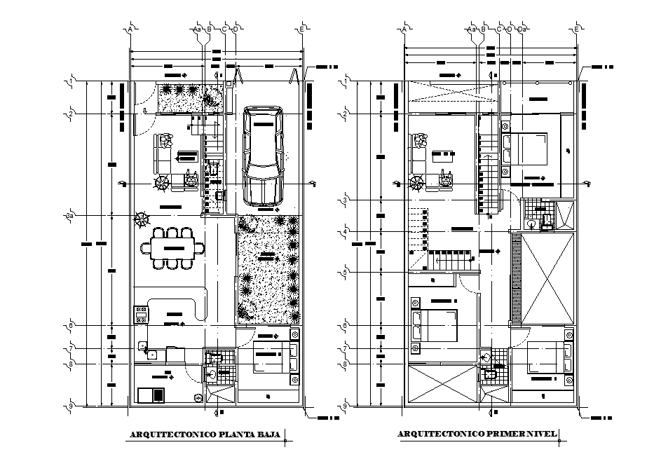
8x15m house plan details are given in this Autocad drawing model. The length and breadth of the plan is 8m and 15m respectively. This plan consists of kitchen, dining, children’s bedroom, master bedroom with attached toilet. Staircase is given inside living hall. For more details download the 2D Autocad DWG drawing file. Thank you for downloading the 2D AutoCAD DWG drawing file and other CAD program files from our website.
Uploaded by:

