8X20m house plan is given in this 2D Autocad DWG drawing file. Download the 2D Autocad DWG drawing file.
Description
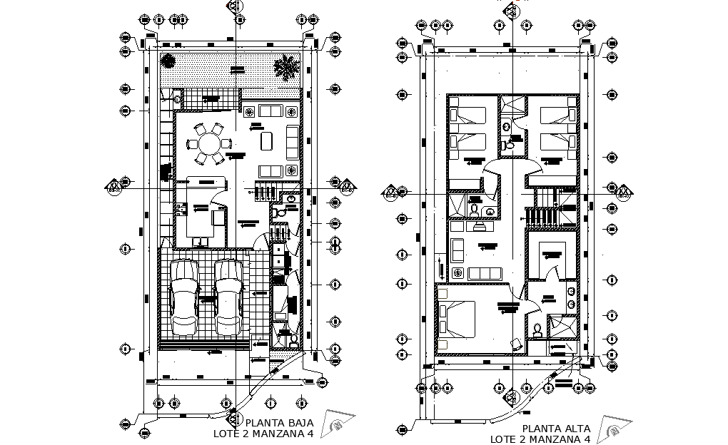
8X20m house plan is given in this 2D Autocad DWG drawing file. This is 3BHK house plan. The length and breadth of the plan is 8m and 20m respectively. This pan consists of car parking, pantry, small garden, vestibule, dining, kitchen, bathrooms, living hall and fourth service mentioned in the ground floor. At first floor three bedrooms with attached toilet, living hall t staircase are mentioned. Other details are given in this 2D Autocad DWG drawing file. Download the 2D Autocad drawing file. Thank you downloading the 2D Autocad DWG drawing file and other CAD program files from our website.
Uploaded by:

