38x32m hospital building plan is given in this 2D Autocad DWG drawing file. Download the 2D Autocad DWG drawing file.
Description
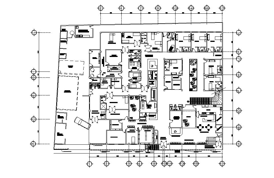
38x32m hospital building plan is given in this 2D Autocad DWG drawing file. This is general hospital building. In this floor doctor’s medicine room, emergency ward, consulting rooms for different department, rest rooms, patient’s rooms with bathroom, major and minor operation theatre, nurse station, reception and waiting area, office room, dining area, kitchen and rest room for male and female are provided. Download the 2D Autocad drawing file. Thank you downloading the 2D AutoCAD DWG drawing file and other CAD program files from our website.
Uploaded by:

