9x8m small hospital plan is given in this 2D Autocad DWG drawing file. Download the 2D Autocad DWG drawing file.
Description
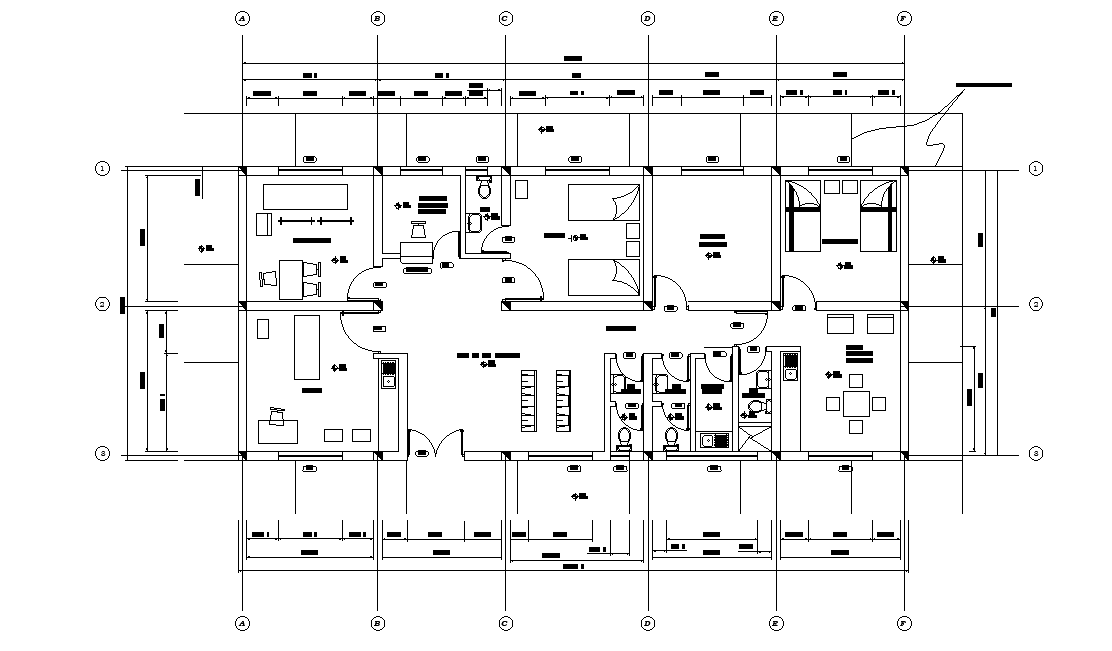
19x8m small hospital plan is given in this 2D Autocad DWG drawing file. In this drawing placing of foundation and beam are given. The length and breadth of the plan is 19m and 8m respectively. This plan consists of consulting room, Pharmacy, admission room, dining, patient’s bed with attached toilet, common toilet, reception, waiting room and other details are given in this Autocad 2D drawing model. Download the 2D Autocad drawing file. Thank you downloading the 2D AutoCAD DWG drawing file and other CAD program files from our website.
Uploaded by:

